|
|
Журнал
"NM House"
уже в продаже!
|
|
|
|
|
| ЗАДАТЬ ВОПРОС
ЭКСПЕРТАМ
НАШ АДРЕС
04073, Украина, г. Киев, ул. Семьи Сосниных 17
ВРЕМЯ РАБОТЫ:
Пн.-Пт. с 9.00 до 18.00
Сб.-Вс. по договорённости
НАШИ КОНТАКТЫ
тел.:
+38 (044) 599 52 93
+38 (067) 402 82 67
+38 (095) 611 46 54
e-mail:
dom@dom-ua.com
|
|
|
|
| Индивидуальное проектирование или готовый проект дома?
Есть люди, которые живут в этом мире по общим правилам, пользуясь типичными вещами, не меняя ничего вокруг себя. Другие люди постоянно пытаются подчеркивать свою индивидуальность, ломая стереотипы и вводят свои правила в книгу под названием «Жизнь…», при этом не останавливаясь на достигнутом.
подробнее >>
|
|
|
Количество показов 4083
|
|
|
|
|
|
Характеристики
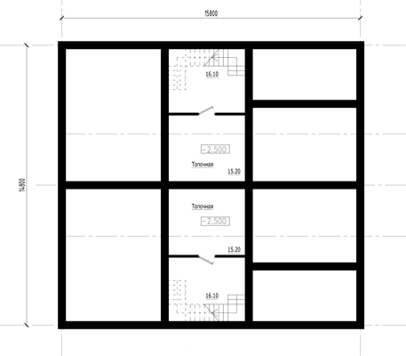
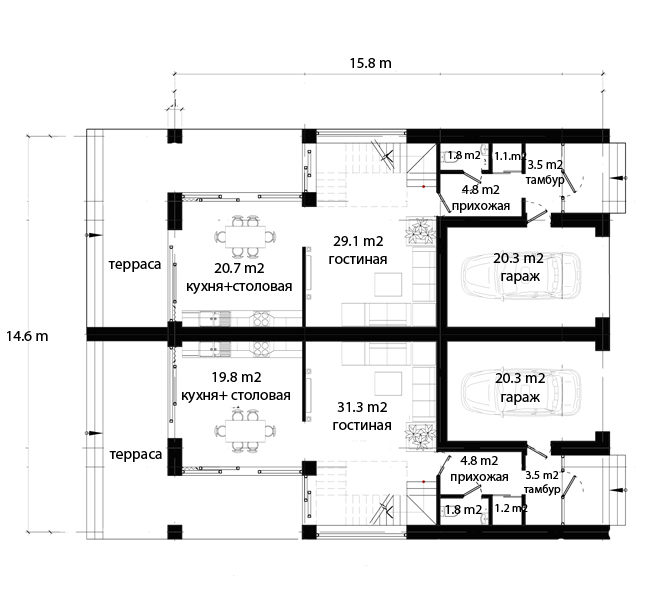
| Общая площадь: 185.26м2 |
| Жилая площадь: 87.84м2 |
| Фундамент: ленточный |
| Материал стен: газобетонный блок |
| Материал перекрытий: монолитные ж/б |
| Материал кровли: рулонное покрытие |
| Отделка фасада: штукатурка |
| Комплектация проекта: АР, КР, ОВ, ВК, ЭО |
| Стоимость проекта: 13900.00 грн. |
| Габариты дома: 15.80 x 14.61 x ---м |
|
|
| |
|
|
|
|
| |
| Стоимость указана за 1 сегмент дома.
Аргументы За
• Современный проект 2-х этажного компактного дома в стиле нео-модерн, удачно сочетающий простые, четкие линии с удобной, комфортной планировкой
• «Изюминка» дома - эксплуатируемая крыша, которая может быть обустроена по желанию хозяев, также проектом предусмотрены лоджии и террасы
• Создается ощущение света и простора за счет панорамных окон, а светлый фасад дома, декорированный термо-деревом бросается в глаза, подчеркивая эстетический вкус его хозяев
• Спроектирован просторный гараж на 2 машины с удобным подъездом.
|
| |
|
| |
| Отзывы 18006 |
Вы первым оставите отзыв!!! |
Проекты коттеджей Вы можете приобрести: Киев, Днепропетровск, Донецк, Львов, Харьков, Сумы, Чернигов, Одесса, Ивано-Франковск, Ужгород, Луганск, Николаев, Херсон, Запорожье, Полтава, Ровно, Житомир, Луцк, Тернополь, Черновцы, Хмельницкий, Винница, Черкассы, Кировоград, Симферополь. |
|
|
|
|

| Проект 17019 |
| Общая площадь: 182.04 м2 |
|
|
|
|
|

| Проект 89007 |
| Общая площадь: 290.02 м2 |
|
|
|
|
|