|
|
Журнал
"NM House"
уже в продаже!
|
|
|
|
|
| ЗАДАТЬ ВОПРОС
ЭКСПЕРТАМ
НАШ АДРЕС
04073, Украина, г. Киев, ул. Семьи Сосниных 17
ВРЕМЯ РАБОТЫ:
Пн.-Пт. с 9.00 до 18.00
Сб.-Вс. по договорённости
НАШИ КОНТАКТЫ
тел.:
+38 (044) 599 52 93
+38 (067) 402 82 67
+38 (095) 611 46 54
e-mail:
dom@dom-ua.com
|
|
|
|
| Индивидуальное проектирование или готовый проект дома?
Есть люди, которые живут в этом мире по общим правилам, пользуясь типичными вещами, не меняя ничего вокруг себя. Другие люди постоянно пытаются подчеркивать свою индивидуальность, ломая стереотипы и вводят свои правила в книгу под названием «Жизнь…», при этом не останавливаясь на достигнутом.
подробнее >>
|
|
|
Количество показов 4028
|
|
|
|
|
|
Характеристики
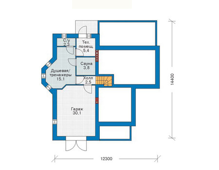
| Общая площадь: 256.70м2 |
| Жилая площадь: 111.40м2 |
| Фундамент: монолитный ж/б |
| Материал стен: кирпич |
| Материал перекрытий: монолитные ж/б |
| Материал кровли: битумная черепица |
| Отделка фасада: штукатурка |
| Комплектация проекта: АР, КР, ОВ, ВК, ЭО |
| Стоимость проекта: 21500.00 грн. |
| Габариты дома: 12.30 x 14.40 x ---м |
|
|
| |
|
|
| |
|
| |
| Отзывы 23569 |
Вы первым оставите отзыв!!! |
Проекты коттеджей Вы можете приобрести: Киев, Днепропетровск, Донецк, Львов, Харьков, Сумы, Чернигов, Одесса, Ивано-Франковск, Ужгород, Луганск, Николаев, Херсон, Запорожье, Полтава, Ровно, Житомир, Луцк, Тернополь, Черновцы, Хмельницкий, Винница, Черкассы, Кировоград, Симферополь. |
|
|
|
|

| Проект 17019 |
| Общая площадь: 182.04 м2 |
|
|
|
|
|

| Проект 89007 |
| Общая площадь: 290.02 м2 |
|
|
|
|
|